Kích thước cửa sổ 2 cánh không chỉ ảnh hưởng đến tính thẩm mỹ của ngôi nhà mà còn tác động lớn đến ánh sáng, lưu thông không khí và sự tiện nghi trong sinh hoạt. Tuy nhiên, mỗi căn phòng lại có những yêu cầu rất riêng. Đâu là kích thước lý tưởng cho phòng khách, phòng ngủ hay phòng bếp? Cùng ASEAN WINDOW khám phá thông tin chi tiết để chọn đúng ngay từ đầu.
Vì sao cần chọn kích thước cửa sổ đúng chuẩn?
Việc lựa chọn đúng kích thước cửa sổ 2 cánh không đơn thuần là chuyện “vừa vặn” với tường nhà, mà còn ảnh hưởng trực tiếp đến chất lượng sống của gia đình. Dưới đây là những lợi ích mà một bộ cửa sổ đạt chuẩn mang đến cho gia đình bạn:
Ảnh hưởng đến công năng sử dụng hằng ngày
Việc lựa chọn đúng kích thước cửa sổ 2 cánh không chỉ là chuyện “đo cho vừa”, mà còn quyết định khả năng thông gió, lấy sáng, đảm bảo không gian sống thoải mái và tiết kiệm điện. Cửa sổ quá nhỏ sẽ khiến phòng bí bách, thiếu ánh sáng tự nhiên. Còn nếu cửa quá lớn lại có thể gây mất cân đối không gian, khó kiểm soát nhiệt độ và tiếng ồn từ bên ngoài.
Yếu tố an toàn và tiện lợi
Một bộ cửa 2 cánh chuẩn kích thước còn giúp đóng mở thuận tiện, hạn chế va đập, tăng độ bền và giảm rủi ro trong sử dụng. Đặc biệt, với những tầng cao hoặc nhà có trẻ nhỏ, kích thước hợp lý còn góp phần đảm bảo an toàn, giảm thiểu tai nạn ngoài ý muốn.
Tính thẩm mỹ và đồng bộ thiết kế
Kích thước cửa phù hợp với diện tích và chiều cao trần nhà giúp không gian tổng thể hài hòa. Khi kết hợp đúng với vật liệu, màu sắc và kiểu dáng, các mẫu cửa sổ 2 cánh đẹp có thể trở thành điểm nhấn kiến trúc cho ngôi nhà.
Vì vậy, khi lựa chọn mẫu cửa sổ 2 cánh đẹp, yếu tố quan trọng không chỉ là chất liệu hay kiểu dáng mà còn là kích thước có hợp lý với không gian sử dụng hay không. Đó là nền tảng để đảm bảo công năng, thẩm mỹ và độ bền lâu dài cho cả căn nhà.

Cỡ phổ biến theo chuẩn kỹ thuật và phong thủy tại Việt Nam
Kích thước kỹ thuật thông dụng
Theo tiêu chuẩn kỹ thuật, kích thước cửa sổ 2 cánh phổ biến dao động từ 820 × 880mm đến 1530 × 1530mm, tùy theo diện tích và mục đích sử dụng của từng không gian. Trong đó, các dòng cửa sổ lùa 2 cánh thường có chiều ngang từ 1000 đến 1500mm, cao từ 1000 đến 1200mm, phù hợp với phòng ngủ, phòng khách hoặc ban công.
Ứng dụng thước Lỗ Ban trong đo đạc
Ngoài yếu tố kỹ thuật, phong thủy cũng được nhiều gia chủ Việt quan tâm. Thước Lỗ Ban, đây là một công cụ đo truyền thống, chia thành các cung tốt và xấu, giúp lựa chọn kích thước cửa hợp mệnh, tránh những cung mang ý nghĩa tiêu cực như “Tử”, “Thất tài”. Khi áp dụng, gia chủ thường chọn kích thước rơi vào các cung như “Tài Lộc”, “Quý Nhân” để mong mang lại may mắn, tài khí cho ngôi nhà.
Phù hợp với điều kiện khí hậu và hướng nhà
Không chỉ xét về tiêu chuẩn hay phong thủy, kích thước cửa còn cần linh hoạt theo điều kiện môi trường. Ví dụ, nhà hướng Tây thường nắng gắt nên chọn cửa nhỏ hoặc dùng thêm kính chống nhiệt. Với các căn nhà ở phố hẹp, mẫu cửa sổ nhỏ gọn, đẩy ngang như cửa sổ lùa 2 cánh sẽ tối ưu diện tích mà vẫn đảm bảo chức năng sử dụng.
Việc lựa chọn kích thước theo chuẩn, kết hợp với hiểu biết về phong thủy và môi trường thực tế, sẽ giúp các gia chủ đưa ra quyết định đúng đắn, tránh sửa chữa tốn kém về sau. Đó cũng là lý do các nhà thầu và kiến trúc sư ngày nay đều cân nhắc đồng thời cả hai yếu tố này khi thiết kế và thi công cửa sổ.

Quy chuẩn kích thước kỹ thuật theo TCVN & tiêu chuẩn quốc tế
Trong quá trình lựa chọn và thi công cửa sổ 2 cánh, việc nắm rõ các quy chuẩn kích thước kỹ thuật không chỉ giúp đảm bảo tính thẩm mỹ mà còn ảnh hưởng trực tiếp đến hiệu quả sử dụng và tuổi thọ công trình. Tùy vào tiêu chuẩn thiết kế tại Việt Nam hay quốc tế, thông số kích thước có thể có sự khác biệt đáng kể, từ đó ảnh hưởng đến phương án thi công cũng như chi phí. Phần dưới đây sẽ cung cấp cái nhìn tổng quan và chi tiết về những quy định kích thước phổ biến, giúp người đọc có cơ sở lựa chọn phù hợp nhất cho từng loại công trình.
Tiêu chuẩn kỹ thuật Việt Nam (TCVN) áp dụng cho cửa sổ 2 cánh
Cơ sở pháp lý và phạm vi áp dụng
Tiêu chuẩn TCVN 7451:2004 được ban hành bởi Bộ Xây dựng, áp dụng cho các loại cửa đi và cửa sổ dùng trong nhà ở dân dụng và công trình xây dựng thông thường. Tiêu chuẩn này đưa ra quy định chung về kích thước, cấu tạo, vật liệu, tính năng cơ học và an toàn trong thi công cửa.
Kích thước cơ bản theo TCVN
Với cửa sổ mở quay 2 cánh, kích thước thường gặp:
- Chiều rộng: từ 870mm đến 1.530mm
- Chiều cao: từ 1.070mm đến 1.530mm
Trong khi đó, cửa sổ lùa 2 cánh (trượt ngang) có kích thước linh hoạt hơn, phổ biến từ 1.000 × 1.000mm đến 1.500 × 1.200mm, tùy theo diện tích và mục đích sử dụng.
Yêu cầu kỹ thuật khác theo TCVN
Tiêu chuẩn TCVN còn quy định về:
- Khả năng chịu lực gió
- Độ kín nước, kín khí
- Khả năng cách âm
- Độ an toàn khi đóng/mở và sử dụng lâu dài
Những yếu tố này đảm bảo cửa phù hợp với khí hậu nóng ẩm, mưa nhiều của Việt Nam và tối ưu về công năng sử dụng trong dân dụng.
Kích thước cửa sổ 2 cánh theo chuẩn quốc tế
Kích thước phổ biến tại thị trường Mỹ và châu Âu
Tại Mỹ, theo khảo sát từ các hãng sản xuất như Pella hoặc Andersen, cửa sổ 2 cánh (casement window) có các mức kích thước tiêu chuẩn như sau:
- Chiều rộng: từ 17 đến 41 inch (tương đương khoảng 432mm đến 1.041mm)
- Chiều cao: từ 16 đến 33 inch (406mm đến 838mm)
Với dòng double-hung (mở trượt lên xuống) phổ biến: Từ 24 × 36 inch đến 48 × 72 inch (610 × 914mm đến 1.219 × 1.829mm)
Đặc điểm của tiêu chuẩn quốc tế
Khác với Việt Nam, tiêu chuẩn kỹ thuật quốc tế:
- Linh hoạt hơn trong thiết kế
- Dễ dàng tùy biến theo thiết kế nhà
- Hướng đến khả năng kết hợp nhiều cửa thành hệ thống lớn
Điều này phù hợp với kiến trúc nhà ở hiện đại tại châu Âu, Bắc Mỹ, nơi yêu cầu ánh sáng tự nhiên nhiều, cửa mở rộng, tầm nhìn thông thoáng.
So sánh chuẩn Việt Nam và quốc tế
Giống nhau
- Đều đặt tiêu chí an toàn, độ bền và công năng làm trọng tâm
- Hướng đến khả năng cách âm, kín nước tốt
- Có phân loại cụ thể theo từng loại cửa (mở quay, mở lùa, mở hất,…)
Khác nhau
Tiêu chí | TCVN | Quốc tế |
Tính linh hoạt | Thấp hơn, dùng size cố định | Cao, dễ tùy chỉnh theo thiết kế |
Kích thước | Giới hạn phổ thông | Rất đa dạng |
Mục đích | Ưu tiên thi công nhanh, chi phí thấp | Ưu tiên thẩm mỹ, hiệu quả năng lượng |
Thiết kế kiến trúc | Phù hợp nhà phố, chung cư | Phù hợp biệt thự, nhà vườn, nhà cao tầng |
Vai trò của việc hiểu đúng tiêu chuẩn
Việc nắm rõ sự khác biệt giữa chuẩn Việt Nam và quốc tế không chỉ giúp người tiêu dùng đưa ra lựa chọn đúng đắn khi mua cửa sổ 2 cánh, mà còn đặc biệt hữu ích với các kiến trúc sư, kỹ sư hoặc nhà thầu khi làm việc với vật liệu và thiết kế nhập khẩu.
Ngoài ra, đối với người tiêu dùng phổ thông, khi hiểu được phạm vi kích thước chuẩn, việc chọn lựa mẫu cửa sổ 2 cánh đẹp và phù hợp với nhà ở sẽ dễ dàng và tiết kiệm chi phí hơn. Các loại cửa có sẵn theo TCVN thường tiết kiệm thời gian đặt hàng và lắp đặt, trong khi cửa theo kích thước quốc tế đòi hỏi đặt hàng riêng và giá thành cao hơn.

Chọn kích thước phù hợp theo từng phòng
Việc lựa chọn kích thước cửa sổ 2 cánh phù hợp không chỉ dựa trên sở thích thẩm mỹ hay thiết kế tổng thể, mà còn cần căn cứ vào công năng sử dụng và diện tích của từng không gian cụ thể trong nhà. Mỗi căn phòng có vai trò khác nhau, từ đó dẫn đến yêu cầu riêng biệt về độ thoáng, ánh sáng và khả năng lưu thông không khí. Nếu lựa chọn không phù hợp, cửa sổ có thể gây bất tiện trong sinh hoạt, ảnh hưởng đến độ bền vật liệu và cả cảm giác thoải mái trong không gian sống.
Phòng ngủ
Nơi đây cần có sự cân bằng giữa riêng tư và thông thoáng nên kích thước cửa sổ 2 cánh cho phòng ngủ cần đáp ứng các yêu cầu sau:
Kích thước lý tưởng
Phòng ngủ là nơi cần sự yên tĩnh, riêng tư và thông thoáng. Do đó, cửa sổ cần đủ lớn để lấy sáng và đối lưu không khí nhưng vẫn đảm bảo sự kín đáo. Kích thước cửa sổ 2 cánh trong phòng ngủ thường dao động từ 82 đến 124 cm chiều ngang và 190 đến 230 cm chiều cao.
Ưu tiên cửa lùa cho không gian nhỏ
Với những phòng có diện tích khiêm tốn, việc tính toán hợp lý kích thước cửa sổ lùa 2 cánh là lựa chọn thực tế. Kiểu cửa này không chiếm diện tích khi mở, tiện lợi trong thao tác và phù hợp với thiết kế hiện đại, tối giản. Nên bố trí cửa hướng Đông hoặc Đông Nam để tận dụng gió mát tự nhiên và ánh sáng dịu nhẹ.

Phòng khách
Ở nơi cần sự thoáng đãng và đón sáng như phòng khách, bạn nên lựa chọn kích thước cửa sổ sao cho đối lưu không khí tốt và có thể đón ánh sáng tự nhiên.
Tối ưu ánh sáng tự nhiên
Là không gian sinh hoạt chung của gia đình, phòng khách yêu cầu cửa sổ có kích thước lớn để tối ưu ánh sáng tự nhiên và tạo độ mở cho không gian. Kích thước được khuyến nghị là từ 120 đến 180 cm chiều ngang và 150 đến 210 cm chiều cao, tùy vào diện tích và thiết kế tổng thể.
Những mẫu cửa sổ 2 cánh đẹp trong phòng khách thường là dạng kính lớn, khung mỏng để tối đa tầm nhìn và cảm giác thoáng đãng. Cửa kính lùa 2 cánh hoặc cửa mở quay đều phù hợp, nhưng với chung cư hay không gian hạn chế, dạng lùa được ưu tiên vì tiết kiệm diện tích và dễ vệ sinh.
Phòng bếp
Cửa sổ 2 cánh cho phòng bếp sẽ ưu tiên nhiệm vụ thông gió và thoáng mùi.
Kích thước nhỏ gọn, hiệu quả
Phòng bếp không cần cửa sổ quá lớn, nhưng phải đủ để đảm bảo thông thoáng và thoát mùi nhanh chóng. Kích thước phổ biến rơi vào khoảng 60 đến 90 cm chiều ngang và 90 đến 120 cm chiều cao.
Giải pháp hợp lý với cửa lùa
Trong không gian bếp, cửa sổ dạng lùa 2 cánh là lựa chọn hợp lý vì không ảnh hưởng đến việc bố trí nội thất và giúp thao tác mở – đóng dễ dàng. Vị trí lắp đặt nên gần khu vực nấu nướng hoặc bồn rửa để tăng hiệu quả thông gió tự nhiên, đồng thời giảm thiểu sự tích tụ hơi ẩm và mùi.

Phòng tắm và hành lang
Diện tích nhỏ, cửa phải tối ưu công năng
Ở những khu vực như phòng tắm hay hành lang, diện tích thường hạn chế nên cần lựa chọn kích thước cửa sổ 2 cánh phù hợp, thường trong khoảng 50 đến 70 cm chiều ngang và 60 đến 90 cm chiều cao. Dù không cần lấy sáng quá nhiều, nhưng việc đảm bảo thông gió là rất cần thiết để chống ẩm và mốc.
Ưu tiên vật liệu kính mờ và thiết kế kín đáo
Với không gian cần sự riêng tư như phòng tắm, vật liệu kính mờ hoặc kính cường lực là lựa chọn nên ưu tiên. Ngoài ra, các thiết kế cửa có tích hợp khe thoáng hoặc chốt gió sẽ giúp duy trì luồng khí lưu thông liên tục mà không ảnh hưởng đến sự kín đáo cần thiết.
Lưu ý khi thiết kế & thi công
Việc đo kích thước cửa sổ lùa 2 cánh chính xác là yếu tố then chốt quyết định chất lượng, tính thẩm mỹ và hiệu quả sử dụng của công trình. Quá trình này đòi hỏi sự tỉ mỉ, cẩn trọng từ khâu khảo sát thực địa đến bước thi công cuối cùng nhằm đảm bảo cửa hoạt động trơn tru và đạt được công năng tối ưu.
Khảo sát hiện trạng và xác định kích thước ban đầu
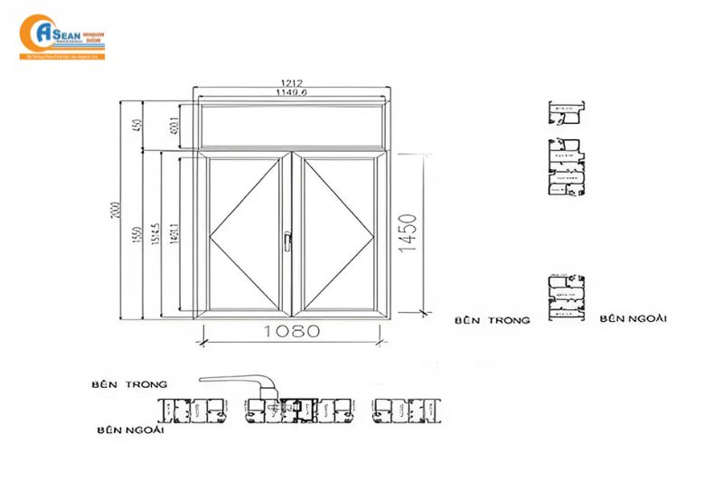
Trước khi tiến hành sản xuất, bước khảo sát hiện trạng vị trí lắp đặt cửa sổ là vô cùng quan trọng. Kỹ thuật viên cần đo đạc kỹ lưỡng chiều rộng và chiều cao của ô tường chờ. Để đảm bảo độ chính xác, nên đo ở ba vị trí khác nhau cho mỗi chiều (ví dụ: đỉnh, giữa, đáy đối với chiều rộng; trái, giữa, phải đối với chiều cao) và ghi nhận giá trị nhỏ nhất. Phương pháp này giúp phát hiện và ứng phó với những sai lệch nhỏ về độ vuông vức của tường, đặc biệt ở các công trình cũ hoặc thi công không đồng đều, từ đó tránh tình trạng cửa bị kẹt sau này.
Tính toán kích thước cửa sổ lùa 2 cánh phù hợp cho sản xuất
Sau khi thu thập số liệu khảo sát, việc tính toán kích thước cửa sổ lùa 2 cánh chính xác cho từng bộ phận cấu thành là bước tiếp theo. Đối với chiều rộng và chiều cao của khung cửa, cần trừ đi một khoảng hở an toàn so với kích thước phủ bì (kích thước ô chờ thực tế). Khoảng trừ này thường dao động từ 10mm đến 15mm.
Khe hở này không chỉ tạo điều kiện thuận lợi cho việc lắp đặt, căn chỉnh cửa mà còn cho phép vật liệu giãn nở tự nhiên do biến đổi nhiệt độ, giảm thiểu nguy cơ nứt vỡ kính hoặc biến dạng khung. Chẳng hạn, nếu ô chờ có chiều rộng 1200mm và chiều cao 1500mm, kích thước cửa sản xuất có thể là 1185mm x 1485mm, tùy thuộc vào dung sai cụ thể của từng hệ vật liệu và tiêu chuẩn thi công.
Lưu ý về dung sai và độ giãn nở của vật liệu
Các vật liệu chính để sản xuất cửa, đặc biệt là nhôm và kính, đều có đặc tính giãn nở dưới tác động của nhiệt độ. Do đó, việc tính toán dung sai (khoảng hở giữa cánh và khung, hoặc giữa khung cửa và ô tường) một cách hợp lý là cực kỳ cần thiết. Dung sai tiêu chuẩn thường được khuyến nghị trong khoảng 0.5mm. Nếu dung sai quá nhỏ, cửa có thể gặp tình trạng kẹt cứng hoặc gây áp lực quá mức lên các mối nối, dẫn đến nứt vỡ. Ngược lại, dung sai quá lớn sẽ ảnh hưởng tiêu cực đến khả năng cách âm, cách nhiệt, độ kín khít và vẻ đẹp tổng thể của cửa.

Yếu tố phong thủy và ứng dụng thước Lỗ Ban
Ngoài các yếu tố kỹ thuật, nhiều gia chủ còn đặc biệt quan tâm đến kích thước cửa sổ lùa 2 cánh theo phong thủy, sử dụng thước Lỗ Ban để tìm các cung số đẹp, được tin là mang lại may mắn và tài lộc cho gia đình. Khi đo đạc theo thước Lỗ Ban, trọng tâm là kích thước lọt lòng (hay còn gọi là kích thước thông thủy) của khung cửa, tức là khoảng không gian mà ánh sáng và không khí có thể đi qua.
Việc kết hợp hài hòa giữa các yêu cầu kỹ thuật và yếu tố phong thủy đòi hỏi sự khéo léo và kinh nghiệm của người thiết kế và thi công để vừa đảm bảo công năng sử dụng, vừa đáp ứng được các giá trị tâm linh mà gia chủ mong muốn.
Kiểm tra và nghiệm thu sau thi công
Sau khi hoàn tất quá trình thi công, việc kiểm tra và nghiệm thu là bước không thể bỏ qua để đảm bảo chất lượng công trình. Cần kiểm tra lại toàn bộ kích thước cửa sổ lùa 2 cánh, đảm bảo các khe hở giữa khung và cánh, cũng như giữa khung cửa và ô tường đều đồng nhất.
Cửa phải vận hành êm ái, trượt nhẹ nhàng, không bị xệ, kẹt hay phát ra tiếng động lạ. Đồng thời, kiểm tra kỹ lưỡng độ kín khít của gioăng cao su, sự chắc chắn của các mối nối, bản lề và phụ kiện để đảm bảo cửa đạt tiêu chuẩn chất lượng cao nhất về độ bền, an toàn và khả năng cách âm, cách nhiệt hiệu quả.
AseanWindow – Nhà phân phối nhôm Xingfa Quảng Đông cao cấp, uy tín
Công ty TNHH Cửa Sổ Việt Châu Á ASEANWINDOW được thành lập ngày 27/05/2007 tại TPHCM. Hiện nay, chúng tôi có hệ thống phân phối trên toàn quốc từ Bắc – Trung – Nam và trụ sở chính tại TP. HCM.
Hệ sinh thái sản phẩm và dịch vụ của ASEANWINDOW:
- Nhôm Xingfa Quảng Đông: Bao gồm các sản phẩm Xingfa Class A, Xingfa 55 Anodized-ED, Xingfa Slim, Xingfa Phổ thông, Xingfa Hệ 55 với độ bền vượt thời gian, thiết kế hiện đại.
- Thanh nhựa Sparlee: Dòng thanh nhựa cao cấp, sản xuất bởi Tập đoàn Đại Liên (Trung Quốc) theo tiêu chuẩn và công nghệ châu Âu, chuyên dùng cho cửa nhựa lõi thép.
- Rèm trong kính hộp: Giải pháp hiện đại và tiện lợi cho các cửa sổ và cửa đi, mang đến sự kết hợp giữa tính thẩm mỹ và chức năng tiện dụng.
- Phụ kiện 3H: Là dòng sản phẩm cao cấp, được thiết kế để đáp ứng các tiêu chuẩn khắt khe về chất lượng và thẩm mỹ.
- Máy sản xuất cửa nhôm: Các dòng máy do AseanWindow cung cấp đều được nhập khẩu trực tiếp từ các thương hiệu uy tín, đảm bảo tính ổn định, độ bền cao và hiệu suất vượt trội.
Bên cạnh đó, Aseanwindow cung cấp dịch vụ tư vấn – thiết kế – thi công trọn gói, bảo hành sản phẩm lên đến 3 năm, và chăm sóc khách hàng 24/7. Với phương châm kinh doanh “Sự hài lòng của khách hàng là thành công của công ty chúng tôi” Aseanwindow luôn chú trọng đến việc cập nhật các sản phẩm chất lượng & giải pháp kỹ thuật mới, đào tạo đội ngũ nhân viên chuyên nghiệp
Liên hệ ngay với chúng tôi:
CÔNG TY TNHH CỬA SỔ VIỆT CHÂU Á ASEANWINDOW
Địa chỉ: B22/463I, Ấp 2, Đường Trần Đại Nghĩa, Xã Tân Nhựt, Huyện Bình Chánh, TP.HCM
Hotline: 0902.988.667 – 0938.054.358
Mail: info@aseanwindow.com
Website: https://aseanwindow.com/
Fanpage: https://www.facebook.com/cuasoVietChauA
Youtube: https://www.youtube.com/@aseanwindow373
Linkedin: https://www.linkedin.com/company/aseanwindow/
Trang sản phẩm: https://aseanwindow.com/cua-hang/
Kết luận
Việc lựa chọn kích thước cửa sổ 2 cánh phù hợp là yếu tố cơ bản nhưng mang tính quyết định đến chất lượng không gian sống. Từ phòng khách cần sự thoáng đãng, đến phòng ngủ cần riêng tư, hay nhà bếp và phòng tắm cần thông gió tố, mỗi không gian đều có tiêu chuẩn riêng về kích thước và thiết kế cửa sổ. Hy vọng qua những phân tích và số liệu trong bài viết, bạn sẽ tìm được giải pháp phù hợp nhất cho tổ ấm của mình.